













More from this brand
Atribuudid | |
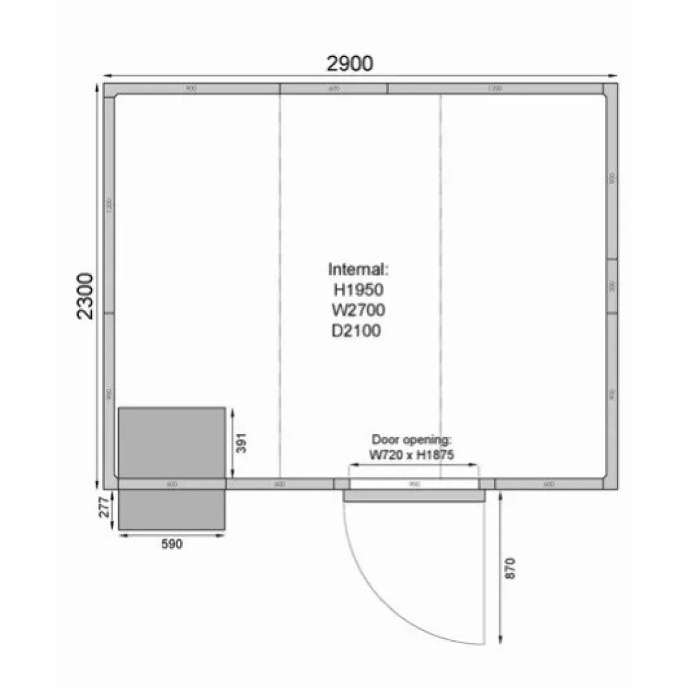
ARTIKKEL | CR2923C |
SUURUS W / D / H | 2900/ 2300/ 2110 mm |
VÕIM | 1,2 kW |
PINGE | 220-240/50 V/Hz |
Temperatuur | -2 to +8 °C |
KAAL | 540 kg |
SULATUD | Automatic, hot gas |
VÕIMSUS | 10564 l/ 11.1 m³ |
KLASS | 4 |
Cold rooms are perfect as plug-in with quick and easy assemble. The cooling units comes completely pre-mounted in a panel and does not require extra expert knowledge. There is no need for cutting or drilling when assembling. The interchangeable modular panels even allow varies positioning of both the panel with the cooling unit and the panel with the door. The coldroom can be used in both restaurants, delis, cafes etc. They are a great way to create optimal and efficient cooling space at a very affordable price. Cold rooms is a perfect and easy accessable way to store foods, dairy products and beverages. The many different coldroom sizes give a good fit in most conditions. Coldrooms are available as both cooler and freezer models. Shelves are optional.